隨著市場對于加氣磚、加氣塊的需求的增加,國內加氣磚設備生產企業也開始對于現有設備進行升級改造。
武漢某加氣磚設備生產線,初期設計年產量為10萬立方米,全部設備由國內設計制造,是國內較早自行設計,也是“地翻”的經典之一。后擴大生產,從2003年到2007年,逐步興建了采用“地翻”工藝設備的加氣二廠、加氣三廠和加氣四廠,年產量達到65萬立方米,產值、銷售收入均突一億元,在業內名列前茅。
為了不斷的適應發展需求,在2014年建成了達到國內僅僅水平“空翻”生產線,成功地實現了產品升級,生產出了能滿足自保溫體系要求的砂和粉煤灰兩大加氣磚塊。
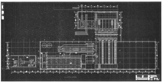
新的生產線設計規模為年產30萬立方米,選用2.75×31m蒸壓釜,4.8×1.5m創新型空翻切割機組系列工藝設備,利用135m×30m原成品庫中90m×30m的面積,配建27.9m×12m原料制備車間和46m×18m成品車間。為盡量發揮原有建筑及已有30em厚地坪的作用,充分利用現有生產線的出釜系統,建設、設計和裝備三方均作了系統而深入研究和反復探討,較終確定了采用內置式配料及L形布置的建設方案。
加氣磚設備建造方案
該項目的主要特點為:
1.采用澆注預養和蒸壓養護分設側板(雙側板)系統,以保證產品的切割精度。
2.出釜共用已有設施,形成橫模人工吊運出釜系統、有托板自動出釜包裝(配叉車)系統和無托板自動出釜包裝(配叉車)系統三種方式。其中,無托板自動出釜包裝專門配置周轉托板自動循環系統,既滿足不同市場的需要,也發揮了原有設施的作用,成為改造設計和新增產能設計的創新。
3.為滿足雙線共用出釜設施,也因為場地限制,生產線采用了旋轉擺渡車,使澆注、切割工段。
和蒸壓養護工段成90。布置,為場地受限制的項目開創了新的工藝布置形式。
4.鋁粉膏采用武漢春筍自有技術~干式自動計量投料系統;生產線采用自動干粉煤灰無塵制漿和砂(濕粉煤灰)碾磨制漿兩套系統;采用自冷卻料漿儲罐。
5.生產線中所有模具軌道和養護小車軌道軌距全部一致,模具和小車可全線無障礙通行,以便于設備檢修和更新;全線設有安全的參觀通道和檢修通道,包括屋面通道,及大地便于設備檢修。
6.較大限度地利用了原有建筑,整個項目幾乎沒有對原建筑進行破拆改造,并且,還結合地形標高,幾乎全部利用了原有300mm厚的車間地坪,既發揮了原有建筑的作用也降低的工程量。生產線完成改造后,武漢春筍的產品質量得到大幅提高,適應了市場對高品質產品的需求,在今年普遍銷售和效益滑坡的情形下,武漢春筍卻出現了供不應求的局面,成為加氣混凝土行業技術進步和產品升級的樣板。
以上來自河南豫暉加氣磚設備網,豫暉專業提供大中小型加氣磚設備,產量覆蓋3萬-30萬立方米生產線,詳情請登錄:http://www.mypil.cn/。
